13208166786
全景星空房(揽月)

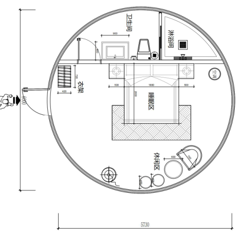
全景星空房(揽月)

框架:铝合金
规格(直径):6m
墙体:中空玻璃+外贴防晒隔热膜
套内面积:28㎡
投影面积:30㎡
抗风等级:10级以下

产品咨询
产品介绍

全景星空房(揽月)

全景星空房(揽月)

全景星空房(揽月)

全景星空房(揽月)

产品咨询